Büro- & Ladenbörse
Sie sind auf der Suche nach Büroflächen oder neuen Geschäftsräumen im Stadtgebiet von Waldkirchen? Dann sind Sie hier genau richtig! Wir bieten Ihnen einen Überblick über vorhandene Möglichkeiten, sich am Waldkirchner Marktplatz oder einer seiner Seitengassen mit Ihrer Praxis, Ihrer Bürogemeinschaft oder Ihrem Geschäft niederzulassen. Waldkirchen heißt Sie herzlich willkommen!
Ihr Ansprechpartner im Rathaus ist City- und Veranstaltungsmanager Michael Hobelsberger
Tel.: 08581/202 23, E-Mail: michael.hobelsberger@waldkirchen.de
10. Dezember 2025
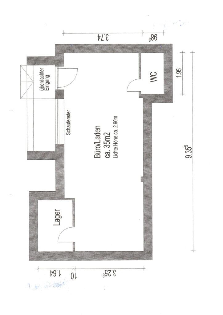
Büro/Ladenräume Baronhof, Färbergasse 1, ca. 35 qm Laden, Schaufenster, Lager und WC Kontaktadresse: Hildegard Birne, 0170 900 2443 Besichtigung am 01. April 2026 möglich Vermietung ab […]
16. September 2025
„Zentrale Stadtlage“ • Gewerbefläche von ca. 80 m² • 2 Behandlungszimmer/Büroräume, Empfang, Labor/Technik und WC • Baujahr lt. Energieausweis 1946 • kein Renovierungsstau (kernsaniert ca. 2000) […]
25. März 2025
Gewerbeeinheit oder 3 Zimmer Erdgeschosswohnung mit ca. 94 m² Nutzfläche Beschreibung Pfleger-Schweiberger eigener Eingangsbereich nahezu ebenerdiger Zugang (1 Stufe) Baujahr 1985 – Massivbauweise Gas-Zentralheizung (1985) gepflegt […]
10. Februar 2025
„Geschäftsräume am Marktplatz in Waldkirchen zu vermieten. Geeignet für Gastronomie, Büro- oder Praxisräume. Fläche im Erdgeschoss ca. 180 qm. Anfragen bitte unter Telefon 08581-910501 oder E-Mail […]
24. April 2024
Baugrundstück in der Landshuter Straße 0,5 km vom Stadtkern entfernt Größe: 1.479 qm Rechtskräftiger Bebauungsplan Wasserversorgung vorhanden Abwasserbeseitigung vorhanden Strom- und Gasversorgung vorhanden Zu erreichen über […]
13. Februar 2020
Büroräume 140 qm ab sofort zu vermieten. Waldkirchen, Marktplatz 25, 2. Obergeschoss. Kann auch geteilt werden. Anfragen unter Metzgerei & Bäckerei Maria Duschl, Marktplatz 25, 94065 […]
25. April 2016
Marktplatz 7, 94065 Waldkirchen Besonderheit: helle, feine Einheit mit Charme; kurzfristig zu vermieten
25. April 2016
Marktplatz 20, 94065 Waldkirchen Besonderheit: moderne, großzügige Praxisräume für einen Arzt mit perfekter Einteilung ca. 150 qm, 1. Stock Ansprechpartner: Franz Bumberger, Tel. 08581 8617
25. April 2016
Schmiedgasse 13, 94065 Waldkirchen Besonderheiten: moderne, großzügige Räume mit dem „gewissen Etwas“ und viel Potenzial, z. B. Erweiterungsmöglichkeiten bei Bedarf vorhanden Laden-/Geschäftsräume: Schmiedgasse 13, 94065 Waldkirchen […]









